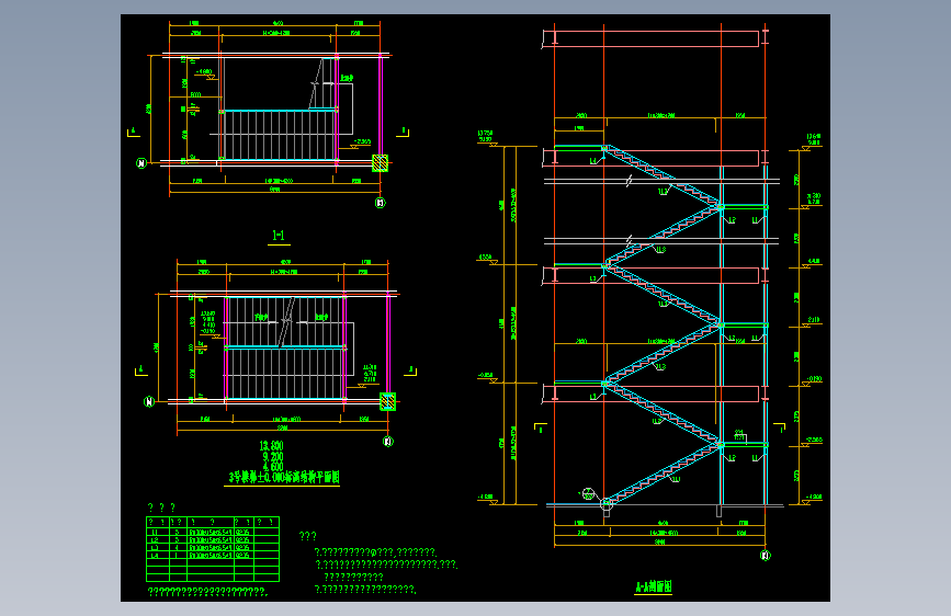
010-两跑楼梯图4(ID:2611001)
| # | 文件名称 | 文件大小 |
|---|---|---|
| 1 | 010-两跑楼梯图4.dwg | 124.67K |
| 2 | 17574810649742.zip | 88.90K |
此图纸下载需要50金币
立即下载
发布者
静
创作: 17755
粉丝: 8
加入时间:2025-05-27
模型信息
图纸格式:dwg
文件大小:91.04KB
所需金币:50
上传时间:2025-09-10 13:11:04
是否可编辑:可修改,包括参数
版本:AutoCAD 2004
标签
图纸简介
版权说明
用户在本站上传的作品如侵犯到您的权益,请与本站管理员联系删除。用户在本站下载的原创作品,只拥有作品的使用权,著作权归原作者所有,未经合法授权,用户不得以任何形式发布、传播、复制、转售该作品。
作者其它图纸 查看更多

0.png)