两层门式刚架结构厂房结构施工图(ID:2684844)
# | 文件名称 | 文件大小 |
---|---|---|
1 | 17591026815644.zip | 713.68K |
2 | 某两层钢框架厂房结构设计图.dwg | 1.83M |
此图纸下载需要51金币
立即下载
发布者
辛奇迹
创作: 2477
粉丝: 8
加入时间:2023-03-15

模型信息
图纸格式:dwg
文件大小:730.81KB
所需金币:51
上传时间:2025-09-29 07:38:02
是否可编辑:可修改,包括参数
版本:AutoCAD 2000
标签
图纸简介
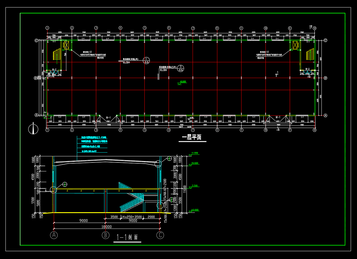
本次设计为:某两层钢框架厂房结构设计图
图纸包括:
建筑设计说明、结构设计说明、建筑平面图、建筑立面图、建筑剖面图、基础平面布置图、立面结构图、GJ图、楼面现浇板配筋图、结构平面布置图、屋盖系统水平支撑布置图、屋顶层平面、节点详图共20张图纸。
版权说明
用户在本站上传的作品如侵犯到您的权益,请与本站管理员联系删除。用户在本站下载的原创作品,只拥有作品的使用权,著作权归原作者所有,未经合法授权,用户不得以任何形式发布、传播、复制、转售该作品。
作者其它图纸 查看更多
猜你喜欢